You have a project in mind?
Tell us more!

TOTEM contact
We need your name
Please enter your company name
Your email is required
Please enter your message
A server error has occurred. Please try again later...
Scroll down

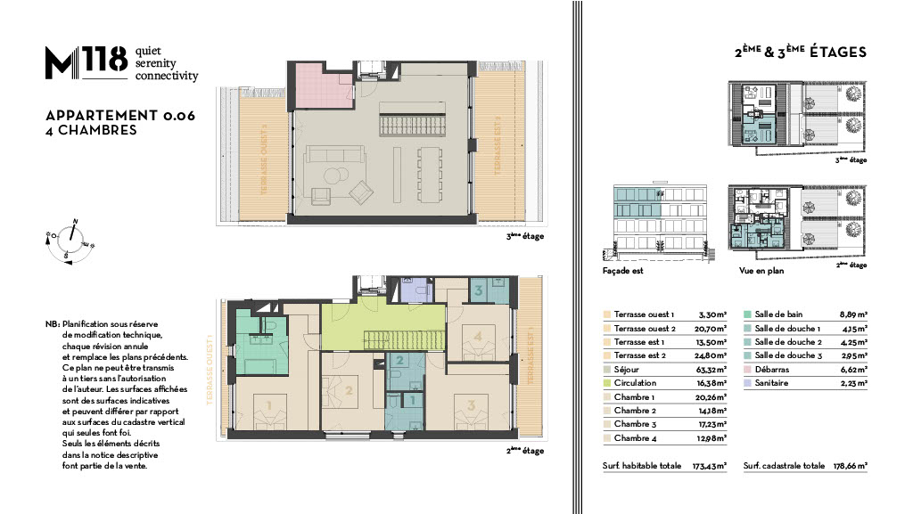
Duplex - Penthouse 2.06

Close to the center, the town hall and the church of Schuttrange sits the new project "M118" which is located on a plot of 15.63 acres at 118, rue Principale.

The residence consists of 6 apartments and its facades are intended to be resolutely urban, more closed to the street and much more generous towards the rear in order to make the most of the green setting. Large windows allow unobstructed views. A considerable amount of light provides optimal comfort for its occupants.

All of the accommodation is lined with balconies of different sizes. These allow you to enjoy the peaceful environment while maintaining your privacy.

Energy class of this residence: AAA

The prices announced include 17% VAT, parking, cellar and an equipped kitchen!

For additional information, please contact us on the following number: +35226512126

2.200.405,01 €

Book an appointment
  • 22018BD_240412_TK_dD0019.jpg
  • WEB_TAMTAM_VUE_INT_DUPLEX.jpg
  • 178,66m2
  • 4 Room(s)
  • 2 parking(s)

Features

  • Heating

    • Heating pump
  • Energy saving

    • Triple glazed window
    • Floor heating
    • Double flow CMV
    • Photovoltaic panels
    • Rainwater storage tank
  • Securities

    • Videophone
  • Comforts

    • Electric shutters
    • Home automation
  • Energies

    • Energy index
    • ECD CO²
    • ECD energy
  • Interior

    • Fully equipped kitchen worth 40,000 €
    • Pantry

TOTEM is your unique contact for all your real estate projects in Luxembourg.

Contact us